9/12/22
Out dated apartments
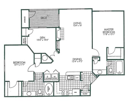
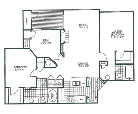
These apartments are old. The appliances are old; the paint is just terrible. The sliding glass doors are single pane which brings in very cold air in the winter, my utility bill in the winter has been $150. They pay for water but the water tank is so small that you can’t wash dishes and take a shower at the same time. No programmable thermostat; I have lived here for 2 years and they are raising rates but yet have no fitness facility; for what you can pay here you can find a newer apartment for... just a little more. It wouldn’t be bad if they offered an up grade in the apartments; the only good thing is the shopping area.
Review from Apartments.com
9 People Found This Helpful
Property Manager at Crescent Arbors responded to this review
Hi there. Due to the anonymity of this review, we are unable to identify you as a resident. Any residents that joined our community post 2010 would be in an non upgraded apartment due to the timeline of our renovations. We pride ourselves on open... communication with our residents as we are always looking for ways to improve their experience within our community. We invite you to stop by our office so we properly can address any and all concerns you may have, in the most efficient way possible. Thank you and we hope to hear from you promptly!





